Villa in vendita sulla litoranea Lecce – San Cataldo (Comune di Vernole)
Descrizione
A pochi passi dalle spiagge sabbiose del litorale di San Cataldo- Le Cesine, proponiamo in vendita una interessante villa immersa nel verde, circondata da ampi spazi esterni terrazzati e da un rigoglioso giardino piantumato e completamente recintato di circa 2.000 mq.
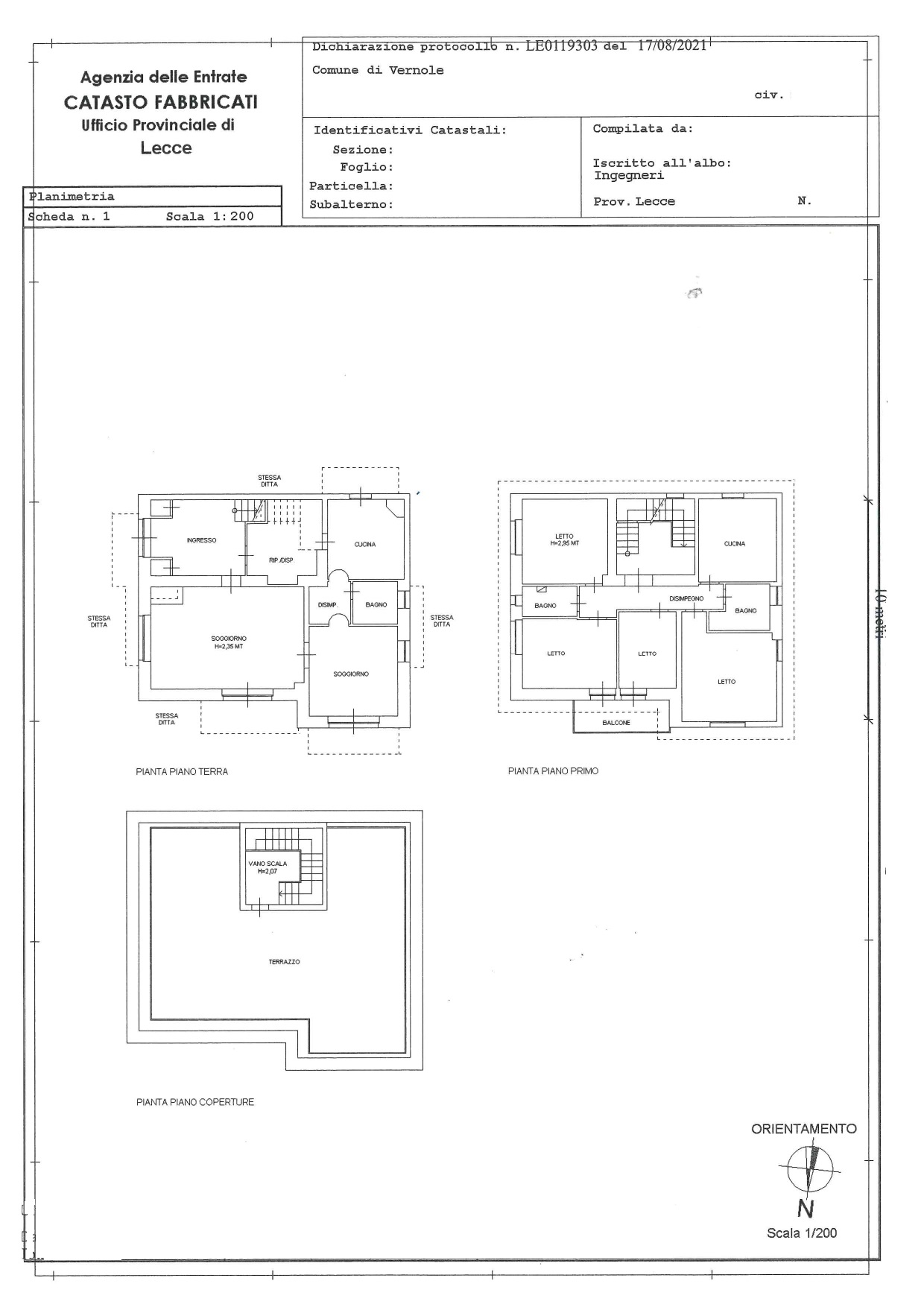
La proprietà, di circa 220 mq, si sviluppa su due livelli.
La zona giorno è caratterizzata da ampie vetrate affacciate sul giardino, che donano straordinaria luminosità agli ambienti interni. Si compone di: ingresso, salone doppio, soggiorno-pranzo, cucina abitabile, bagno e lavanderia.
La zona notte, situata al piano superiore, ospita cinque camere da letto, doppi servizi e un balcone.
L’immobile è rifinito con materiali di pregio: parquet nella zona notte, infissi in PVC a taglio termico con vetrocamera di ultima generazione, due camini, riscaldamento autonomo, climatizzazione estiva, sistema di allarme perimetrale e volumetrico.
Una proposta unica e confortevole, ideale per chi desidera vivere a contatto con la natura, tra mare e campagna, senza rinunciare a comfort e privacy.
Villa for Sale on the Lecce – San Cataldo Coastal Road (Municipality of Vernole)
Just a few steps from the sandy beaches of the San Cataldo–Le Cesine coastline, we offer for sale an attractive villa surrounded by greenery, featuring large terraced outdoor areas and a lush, fully fenced garden of approximately 2,000 sqm.
The property, measuring about 220 sqm, is arranged over two levels.
The living area is distinguished by large windows overlooking the garden, providing exceptional natural light throughout the interiors. It comprises: entrance hall, double living room, dining area, fully equipped kitchen, bathroom, and laundry room.
The sleeping area, located on the upper floor, includes five bedrooms, two bathrooms, and a balcony.
The property is finished with high-quality materials: parquet flooring in the sleeping area, PVC thermal break window frames with latest-generation double glazing, two fireplaces, independent heating system, summer air conditioning, and both perimeter and volumetric alarm system.
A unique and comfortable opportunity, ideal for those who wish to live close to nature, between the sea and the countryside, without sacrificing comfort and privacy.
Indirizzo
-
Indirizzo vernole
-
Nazione Italia
-
Province/State Puglia
-
City/Town Provincia di Lecce
-
Città vernole
Panoramica
- ID Proprietà 30857
- Prezzo €258,000
- Categoria Proprietà *In vetrina*, Ville e Casali
- Status Proprietà In vendita
- Stanze 7
- Camere da letto 4
- Bagni 3
- Superficie 220 m2
- Area esterna 2,000 m2
- Etichetta Mare
- Box auto 0
Per favore effettuare il login per visualizzare le informazioni di contatto per questo agente/proprietario